【檢測原理】
系統整體采用工業相機在線圖像掃描的工作原理,在生產線高速生產的狀態下,采用特定波長的高亮LED工業線光源照射產品表面,通過工業相機實時掃描并采集光源照射處的產品圖像。相機采集到的薄膜圖像經過IQD-Fast圖像算法進行瑕疵識別處理。由于瑕疵的成像圖片與正常產品的成像圖片存在灰階差異,通過深度學習處理、從而能夠精準發現產品的缺陷;同時根據事先采集各類瑕疵的圖像特征并記錄缺陷庫,實現瑕疵在線檢測、分類與后續處置。
【檢測缺陷類型】
毛面亮點、毛面銅粒、凹凸點、褶皺、氧化點、黃點、黑點、水印、劃痕、水波紋、毛面異物、針孔等問題。

【檢測設備基本參數】
1、檢測幅寬:1350mm
2、檢測厚度:3um~20um
3、運行速度:0-35m/min
4、檢測面:正面和反面
5、檢測的最小尺寸精度:CD:0.065mm/pixel MD:0.065mm/pixel
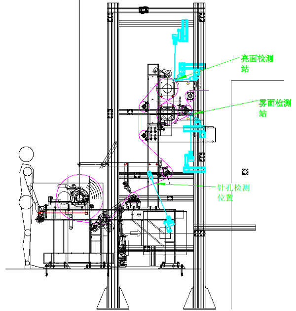
【系統整體結構】

【檢測系統功能】
1、檢測設置分析軟件:此軟件用于對銅箔檢測進行設置,設置相機、視覺相關和被
2、高級智能分類:根據缺陷類型,精準判別,發送報警信號
3、檢測實時監測:用于處理和分析檢測結果
4、報表軟件:允許用戶使用數據中的歷史數據生成定制的報表
CCD表面檢測儀額外附帶GC-CWGray軟件,可實現對圖像灰度的分析
【應用案例】
